Strambino - Appartamento

Via Cotonificio 23, Strambino (TO)

In Vendita

179.000


ID Annuncio: G68


Descrizione


Dimensioni


80 m2

Camere


2

Bagni


2

Riscaldamento


Autonomo

Piano


1

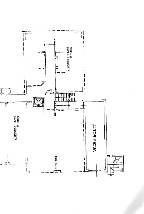
Box auto


Doppio



Per maggiori informazioni contattare Gaetano al 3923498321
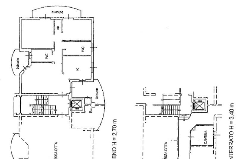
STRAMBINO - Elegante quadrilocale con terrazzi e box auto doppio.
Nel centro del paese, in stabile signorile costruito nel 2005, proponiamo luminoso appartamento al primo piano con riscaldamanto autonomo.
L'abitazione presenta una zona living accogliente con l'ingresso che si apre sul soggiorno, cucina, due spaziose camere e due bagni di cui uno con vasca e l'altro con la doccia.
Tutte gli ambienti hanno l'accesso diretto al balcone o ai terrazzi.
La proprietà include un'ampia cantina e un raro box auto doppio.
Lo stabile è interamente recintato e dispone di parcheggio condominiale molto spazioso.



Riferimento:
3923498321 Gaetano

Altre informazioni


N° Locali:

4

Stato manutenzione:

In ottimo stato

Tipo cucina:

Abitabile

Arredamento:

Non arredato

Tipo e stato infissi:

Doppio Vetro/Legno

Tipo riscaldamento:

Autonomo

Spese condominio (mese):

€90,00

Tipo acqua calda:

con caldaia autonoma

N° balconi:

1

N° terrazzi:

2

Cortile comune:

Impianto tv:

Centralizzato

Fibra ottica:

Cantina:

m2 Box:

32

Box incluso nel prezzo:

N° posto auto:

liberi

Impianto allarme:

Video citofono:

Aria condizionata:

Porta blindata:

Lati liberi:

Tre

Affaccio:

Esterno

Classe energetica:

C

Indice prest. energetica:

92,68

Anno costruzione:

2005

Ascensore:

Consegna:

Al rogito

Libero:

Dove si trova ?


Ufficio di riferimento



Ivrea

Corso Re Umberto I, 14
Tel. 0125.282566
Mob. 349.3607239

Richiedi informazioni


Nome e Cognome*
Email*
Telefono*
Richiesta informazioni*
(*) Informazioni obbligatorie
Consenso per attività di marketing
Trascrivi il codice Anti-Spam e Invia
This Is CAPTCHA Image